Planungen
Planungen Umbau:
Wartberg Heizungseinbau in Bestand
Stadl-Paura Aufstockung am Bestand Zweifamilienhaus
Fischlham Einbau Frisierstube in Bestandswohnhaus
Lambach Aufstockung Dachgeschossausbau Zweifamilienhaus
Wels Verbinden zweier Eigentumswohnungen
Manning Garagenneubau und Zubau überdachter Eingangsbereich
Stadl-Paura Umbau Dachgeschoss Einfamilienhaus
Puchheim Neubau Garagen mit Abstellraum und überdachter Eingang
Lambach Aufstockung Dachgeschossausbau Zweifamilienhaus
Wels Entwurfsplanung Dachgeschossausbau bei einem Mehrparteienhaus
Neuhofen Dachgeschossausbau am Bestand Zweifamilienwohnhaus
Salzburg Entwurf für eine Fassadenerneuerung
Sattledt Einbau von Mietwohnungen in einen Bauernhof
Sattledt Planung einer Stützmauer
Kirchberg Neubau Garagen
Stadl-Paura Dachgeschossausbau im Bestand
Edt Zubau Wohnung und Neubau Carport
Kremsmünster Zubau Eingang am Bestand mit Stellplätze
Stadl-Paura Umbau eines bestehenden Einfamilienwohngebäudes
Irnharting Neubau Gartenstützmauer
Stadl-Paura Garagenneubau und Umbau einer Wohnung in Bestand
Stadl-Paura Dachgeschossausbau und Zubau
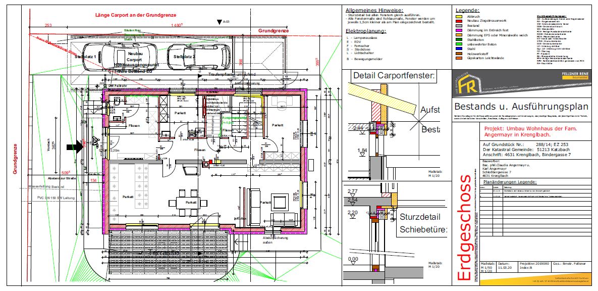
Krenglbach Umbau Bauernhof
Stadl-Paura Innenumbau Neugestaltung Einfamilienhaus
Ried im Innkreis Planung Bestandsumbau
Planungen Neubau:
Fischlham Carportzubau
Wartberg Neubau Gartenhütte
Wimsbach Neubau Pferdestallungen
Stadl-Paura Neubau Garagenpark
Stadl-Paura Neubau Carport
Haag am Hausruck Planung Neubau Einfamilienhaus
Stadl-Paura Neubau Einfamilienhaus
Eberstalzell, Neubau Einfamilienhausbungalow
Bachloh Neubau Remise
Stadl-Paura Neubau Carport

















